Please complete the form below and a member of staff will be in touch shortly.
Property Features
OUTSTANDING RESDIENTIAL DEVELOPMENT SITE
EDGE OF TOWN LOCATION
OPPORUNITY FOR 9 DWELLINGS
Property Summary
OUTSTANDING RESDIENTIAL DEVELOPMENT SITE **OPPORUNITY FOR 9 DWELLINGS** EDGE OF TOWN LOCATION**
A fantastic site on the north west outskirts of to...
Full Details
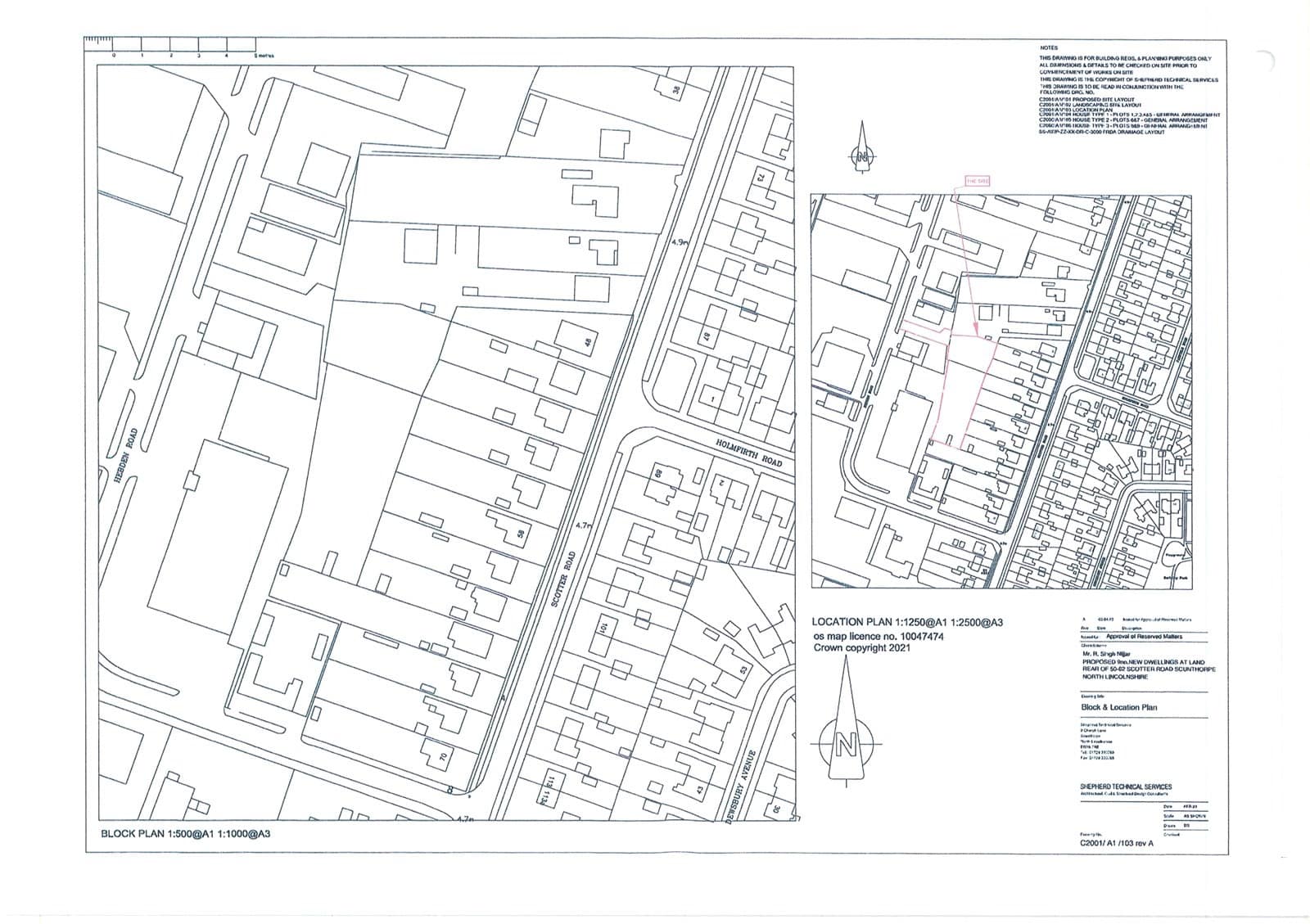
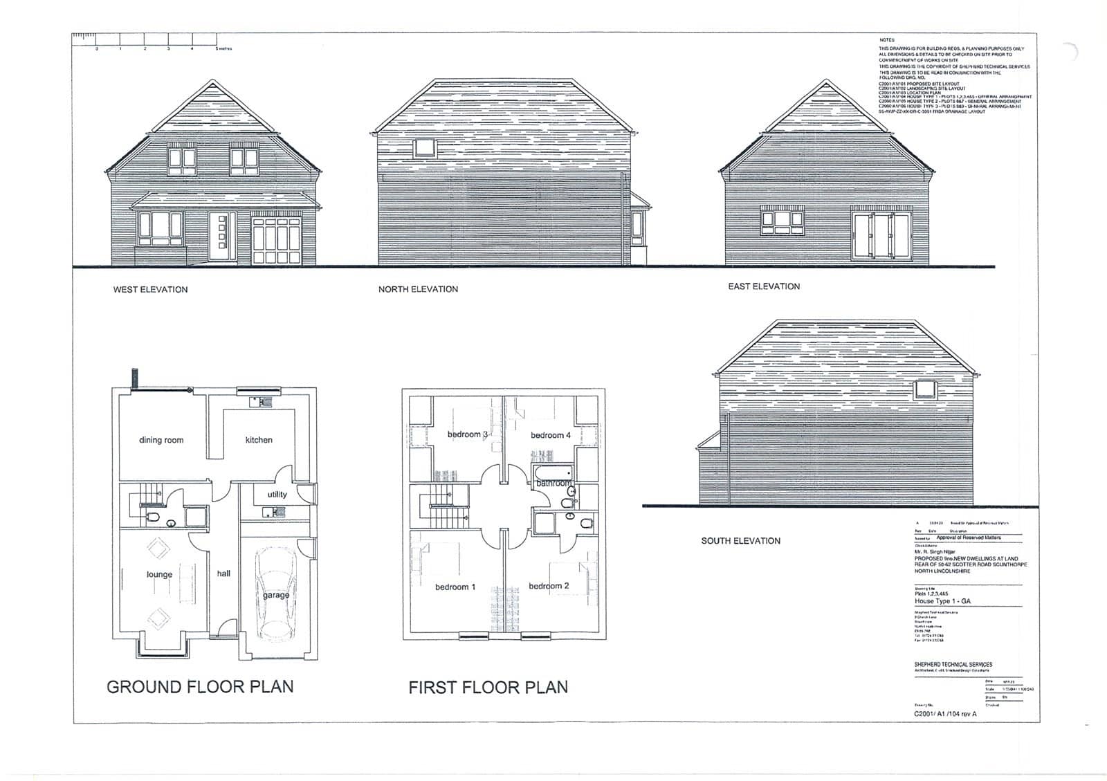
A fantastic site on the north west outskirts of town close to Berkeley Estate with Outline Planning Permission for 9 detached dormer bungalows (3 and 4 beds) served off a cul-de-sac. Popular location convientantly located close to all local amenities.
Ideal for a local builder or developer.
Site area 0.75 acres approximately.
Stylish design and layout with the bungalows likely to have a high demand from a wide variety of purchasers. Don't miss this great opportunity!
Your valuation of ### is based on the current housing price trends of the ### area.
The value has ### by ### since it was last sold on ### for ###.
No sale information is available on this property, so the valuation is based on the nearby sales of similar properties.
Property
Sale Price
Date
Pick the best times for you
Please select multiple date and time slots for your valuation appointment. You can always amend the time of the valuation after booking.
Month
MON
TUE
WED
THU
FRI
SAT
SUN
Your Preferred Times:
No current selection. Any time is good.
Requesting Professional Valuation...
Thank You
Thank you for requesting a valuation on your property. One of our property consultants will contact you soon to arrange a convenient time.
Error Message
Terms and Conditions
These are the general Terms and Conditions which apply to use of this online valuation service.
We will collect personal information from you (such as name, address, telephone number, email address etc) when you complete this form or request a professional valuation. Please do not submit your personal information to us if you do not wish us to collect it.
We may disclose personal information if required to do so by law or if we believe that such action is necessary to protect and defend the rights, property or personal safety of the Site or its visitors.
By using this service you agree that we may share your information with our trusted partners so that they can provide information to you about products and services that may interest you. This may be by email, SMS, telephone or direct mail. If at any time you do not wish us to share your information in this way, please contact us.