Allison Close, Messingham, DN17
£185,000
Allison Close, Messingham, DN17
Property Features
- 2 DOUBLE BEDROOMS
- NOT TO BE MISSED
- HIGHLY SOUGTH AFTER LOCATION
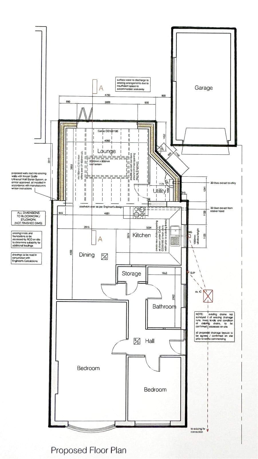
- PA/2024/283
- A DESIRABLE MODERN DETACHED BUNGALOW
- DEEP DRIVEWAY & DETACHED BRICK GARAGE
- NO UPWARD CHAIN
- PRIVATE ENCLOSED REAR GARDEN
- PLANNING PERMISSION FOR A REAR EXTENSION
Property Summary
Full Details
A sought after modern detached bungalow located within a well regarded area offering well proportioned accommodation that benefits from planning permission for a rear extension. The current layout comprises, side entrance hallway, fitted kitchen, large main living room, 2 double bedrooms and a bathroom. A deep driveway allows parking for an excellent number of vehicles with direct access to a detached brick built garage. Gated access between the property and garage leads to a private enclosed rear garden that enjoys a south/westerly aspect. Finished with full double glazing, with the front and side units having been recently replaced and a modern gas fired central heating system. Viewing comes with the agents highest of recommendations. View via our Scunthorpe office.
Entrance Hallway 8' 6" x 4' 2" (2.60m x 1.27m)
Kitchen 8' 7" x 10' 0" (2.62m x 3.06m)
Living Room 11' 4" x 19' 0" (3.45m x 5.78m)
Rear Double Bedroom 1 9' 6" x 15' 1" (2.90m x 4.60m)
Rear Double Bedroom 2 10' 4" x 9' 5" (3.15m x 2.87m)
Bathroom 5' 6" x 6' 11" (1.67m x 2.11m)
Grounds
Outbuildings 9' 4" x 18' 1" (2.84m x 5.50m)


























